Büro-/Verwaltungsfläche – 2 Etagen – 1.600 m² – PROVISIONSFREI
Eckdaten
- Art Bürofläche
-
Lage
Hermann-Josef-Gormanns-Straße 14
41812 Erkelenz - Miete zzgl. NK 16.360,00 €
- Mietpreis pro m² 10,00 €
- Nebenkosten 2.867,00 €
- Bürofläche ca. 1.636 m²
- Zimmer 54
- Baujahr 1997
- Heizungsart Fernwärme
- Bezugstermin nach Vereinbarung
- Zustand Gepflegt
- Immobilien-ID 1004075
Immobilie
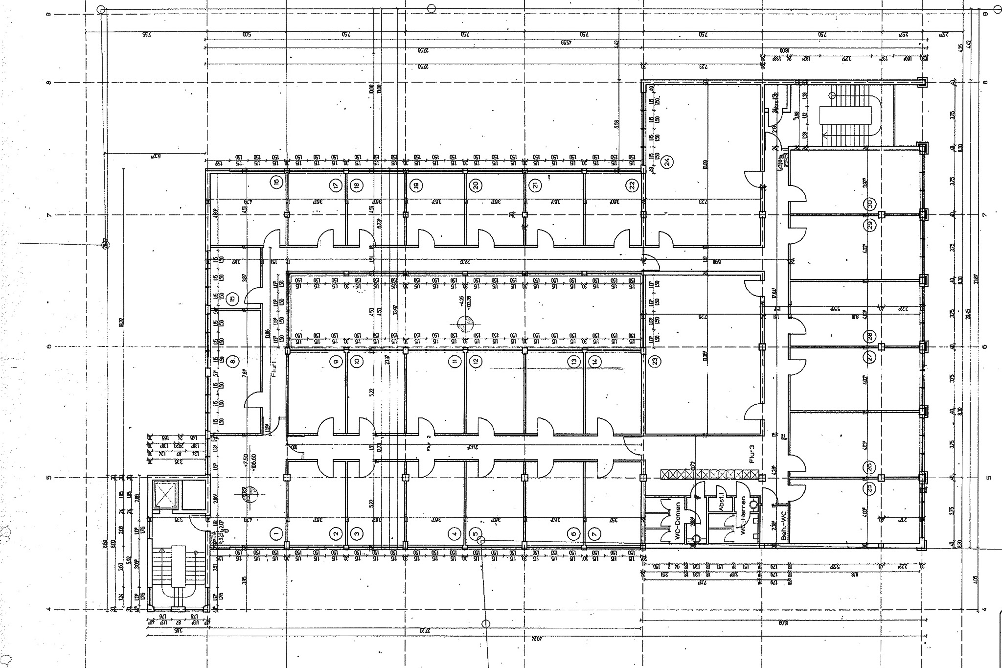
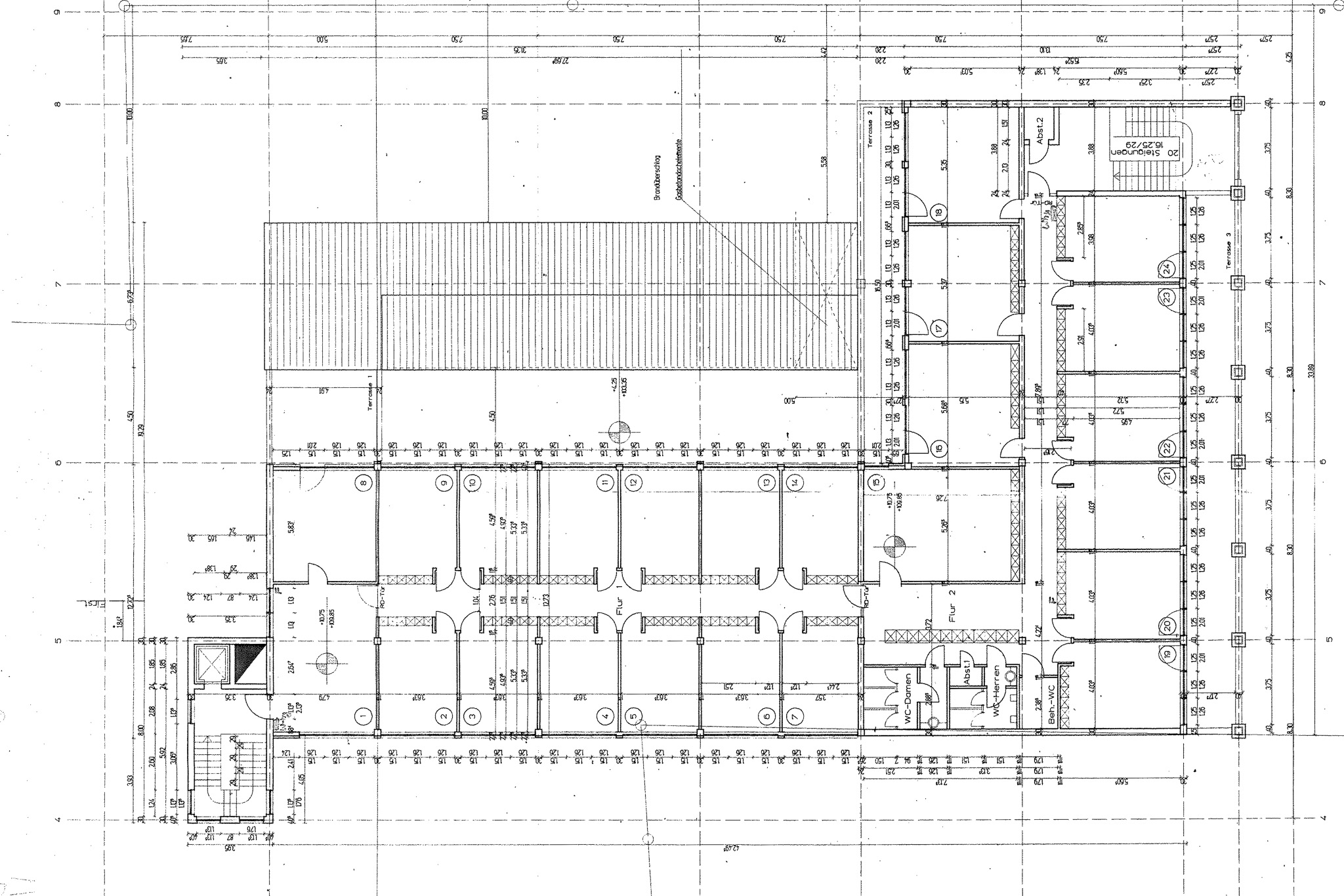
Die angebotenen Büroflächen befinden sich im 2. und 3. Obergeschoss eines gepflegten Gewerbekomplexes aus dem Baujahr 1997 in attraktiver Lage.
Die Gesamtmietfläche beträgt ca. 1.636 m² und verteilt sich auf insgesamt 54 Büroräume. Durch die Aufteilung über zwei Etagen bieten die Flächen eine flexible Nutzungsmöglichkeit und eignen sich ideal als Verwaltungs-, Dienstleistungs- oder Bürostandort.
Die Raumstruktur ermöglicht sowohl Einzel- als auch Teamarbeitsplätze, Besprechungsräume sowie ergänzende Funktionsflächen. Damit bietet das Objekt gute Voraussetzungen für eine effiziente Büroorganisation. Zusätzlich bietet das städtische Parkhaus im UG zahlreiche Parkmöglichkeiten.
Die Flächen sind aktuell vollständig vermietet. Eine Anmietung ist perspektivisch möglich; ein Einzug kann nach Absprache erfolgen. Besichtigungen sind möglich.
Weitere Objektunterlagen sowie detaillierte Informationen stellen wir Ihnen gerne auf Anfrage zur Verfügung.
Lage
Die Flächen befinden sich in zentraler Lage in der Innenstadt von Erkelenz.
Ausstattung
▪ Über 2 Etagen
▪ Baujahr 1997
▪ Gesamtmietfläche ca. 1.636 m²
▪ 54 Büroräume
▪ Flexible Raumstruktur
▪ Geeignet für Verwaltungs-, Dienstleistungs- oder Bürostandorte
▪ Teil eines größeren Gewerbekomplexes
▪ Gepflegter Gebäudezustand
▪ Attraktive Lage
Energieausweisangaben
- Enerigeausweistyp Bedarfsausweis
- Energiekennwert 129 KWh(m²*a)
- Energieausweis erstellt am 24.10.2018
- Energieausweis gültig bis 23.10.2028
- Heizungsart Fernwärme
- Befeuerung / Energieträger Fernwärme
Herzlichen Dank für Ihre Anfrage.
Wir werden diese so schnell wie möglich bearbeiten.


